(有)敏一建築にて新築をご依頼された場合の完成までの流れをご説明いたします。
![]() |
其の壱 施主様との間取りの打ち合わせご予算とご希望の家の構想をお聞きし、間取りや外観を大まかなものをCADを使用しながら 打ち合わせをさせて頂きます。
|
![]() |
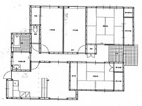
其の弐 図面の建ち上げ其の壱で決定しました図面を設計事務所に提出し、建築許可と正式な図面を決定します。
|
![]() |
其の参 施主様とのご契約を交わし、上棟式の日取りを決定します図面建ち上げが終了した後に本契約を交わさせて頂き(必ず大安を選びます)同時に |
![]() |
其の四 板図面をひき、材料取りをしますベニヤ板に板図面をひきます。板図面とは材料の刻みと建前には欠かせない、大工が仕事
をするのに一番重要な図面となります。 |
![]() |
其の五 材料を並べ、仕事始めを行います仕事始めとは、家の土台となる材料(木材)に墨入れをしこの土台となる材料に洗米・塩・
清酒をかけ土台となる材料を清めます。 プレカットが主流の現在、このような仕事始めをする住宅は少なくなりましたが、弊社ではこれも家造りの大切な工程のひとつだと考え、丁寧に仕事始めをさせて頂いております。 |
![]() |
其の六 墨つけを開始する材料となる木材の特徴(むくりやそり)や木の材質を長年の経験の上で考慮し、適材適所に材料を振り分け墨を入れていきます。 昔では当たりまであった墨付けも現在では、墨付けができる職人も減り、墨付けも残すべき伝統的な技法となってきました。 |
![]() |
其の七 刻みを開始する墨付けの終わった材料の刻みを開始します。 ハリ組の仕掛けになる部分など、特殊な技術を利用しての刻みとなります。 |
![]() |
其の八 地鎮祭を行い、基礎工事を開始します(大安吉日)大安の日に地鎮祭を行います。 地鎮祭が終了した後に、丁張りを出し、基礎工事を開始します。 基礎工事に関しても弊社が責任を持って監理しますので、ご安心下さい。 |
![]() |
其の九 上棟式を行います(大安吉日)「上棟式」は建前(タテマエ)とも呼び、無事棟が上がったことに喜び、感謝するものです。 一般的には棟梁が棟木に幣束(ヘイグシ)を立て破魔矢を飾り、建物の四方に酒・塩・米をまいて清め上棟の儀を行います。
※写真は屋根に飾られた破魔矢です。 |
![]() |
其の十 外周り先行基本的に上棟式が終わった後は外周りを先行して仕上げていきます。 外周りを先行して行い、雨などで中が濡れないように気を使います。 |
![]() |
其の十壱 中施工室内の施工・仕上げを行います。 什器の新設、棚の設置など、お気軽にご相談頂ければ融通を利かせます。 |
![]() |
其の十 完成、引渡し完成した時点でハウスクリーニングを行います。 ハウスクリーニングが完了した後に、引渡しをなります。 引渡しも基本的には大安を選びます。 |





















